


Caratteristiche e dettagli



Casetta in legno con capanno in abete Nordico solido e resistente. La casetta dispone di due stanze separate – una con una porta singola, l’altra con una porta doppia con vetri e una finestra. Puoi utilizzare entrambe le stanze per riporre attrezzi da giardino, macchine, biciclette, barbecue e altro ancora, oppure puoi utilizzare la grande stanza come laboratorio, per attività creative o relax. NB! La copertura del tetto in feltro non è inclusa! Ti invitiamo a notare che lo stipite della porta e i telai delle finestre sono dipinti di bianco. Modularo® è un moderno marchio di lifestyle che offre articoli di alta qualità, resistenti, in legno massello e dal design moderno in grado di rendere la tua vita in giardino ancora più ricca e piacevole.
Produktspezifikationen
-
Tipo di portaDouble hinged door
-
MaterialeAbete Nordico (Picea Abies)
-
ColoreGrigio chiaro
-
Angolo del tetto/inclinazione (⁰)19
-
Spessore pannello parete (mm)44
-
Altezza laterale (m)2.11
-
Numero di prodottoWC165582
-
Spessore pannello pavimento (mm)18
-
Spessore pannello tetto (mm)18
-
Lunghezza esterna (m)2.88
-
Larghezza esterna (m)4.3
-
Sporgenza tetto (cm)20
-
Lunghezza interna (m)2.312
-
Larghezza interna (m)3.768
-
Peso (kg)1010
-
Altezza colmo (m)2.51
-
Spessore piastra laterale (mm)44
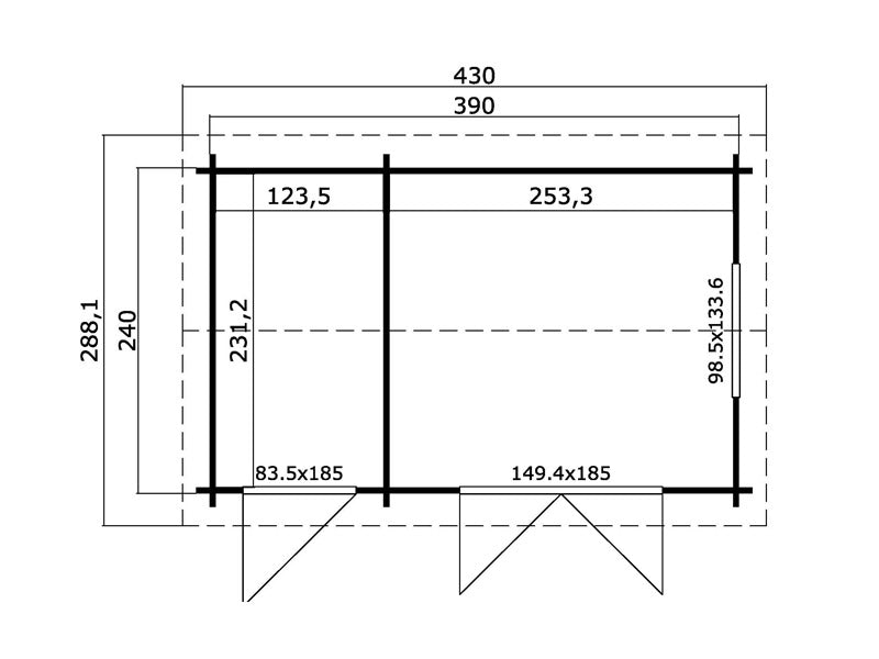
- Casetta in legno con due stanze separate
- Una stanza con porta doppia con vetri e finestra
- Una stanza con porta singola
- Realizzata in resistente e bellissimo abete Nordico
- Pavimento in legno incluso
- La porta doppia consente un facile accesso
- Finestra e porta forniscono luce naturale all'interno della grande stanza
- Entrambe le porte sono bloccabili
- Porta doppia 149,4 x 185 cm
- Porta singola 83,5 x 185 cm
- Finestra 98,5 x 133,6 cm
- Perfetta per riporre attrezzi da giardino e molto altro ancora
- Può essere utilizzata come officina e altro ancora
- Copertura del tetto in feltro non inclusa
- Tutte le parti sono prefabbricate
- Facile da montare
- La protezione per legno deve essere applicata dopo il montaggio
- Stanza piccola 2,85 m²
- Stanza grande 6,1 m²
Elegante casetta in legno con due stanze separate. Puoi utilizzare entrambe le stanze per riporre attrezzi da giardino, macchine, biciclette, barbecue e altro ancora, oppure puoi utilizzare la piccola stanza come un capanno e la grande stanza come un laboratorio, per il relax e altro ancora. L'ampia porta doppia con vetri – in combinazione con la grande finestra nella parete terminale - fornisce luce naturale all'interno della grande stanza durante il giorno. La piccola stanza ha una porta singola ed è priva di finestre. Entrambe le porte sono bloccabili con la serratura a cilindro integrata per fornire un riparo sicuro per tutte le tue cose.
La casetta in legno è consegnata come set di montaggio prefabbricato. Consigliamo la presenza di almeno due persone per fare il lavoro ma non sono necessari attrezzi speciali. è sufficiente seguire le istruzioni dettagliate insìcluse. La casetta è realizzata in legno naturale per cui ti consigliamo di trattare il legno con una protezione per legno di alta qualità appena possibile dopo il montaggio. Seleziona il tuo colore preferito o utilizza una protezione per legno trasparente per sfruttare il bellissimo legno su base permanente.
Modularo® è un marchio di lifestyle moderno che punta su alta qualità, durata e comfort. Il marchio offre una vasta gamma di articoli in legno di lunga durata come casette da giardino, serre, gazebo da giardino e cabine in legno in grado di migliorare la vita in giardino e renderla più piacevole su base permanente. Il marchio offre design elegante, funzionalità e spazio per vivere.
- In caso di vento forte, E' tua responsabilità assicurare il gazebo adeguatamente e prevenire che questo danneggi cose e persone
- In caso di neve, possono accumularsi sul tetto cumuli di neve. Grandi nevicate possono causare il collasso della struttura. E' tua responsabilità rimuovere la neve dal tetto del gazebo ed evitare danni alla tua struttura.
- Si prega di assicurarsi che la tenda sia perfettamente asciutta prima dello smontaggio e prima di essere riposta. Questo per fare in modo di evitare formazioni di muffe.
- Non riporre o tirar fuori il gazebo con temperature sotto gli 0 gradi centigradi.
- Non utilizza fuochi liberi, equipaggiamenti per saldatura o altre fonti di fuoco, all'interno o nelle vicinanze del gazebo.
- Si prega di notare che la garanzia Dancover si applica soltanto per quanto riguarda l'uso normale del prodotti, in accordo con le istruzioni scritte nel manuale. La garanzia non copre la normale usura. Allo stesso modo non copre danni, difetti ed usura causata a causa di utilizzo scorretto, cattiva manutenzione, abuso, modifiche non autorizzate o esposizioni a cattive condizioni atmosferiche.
- Raccomandiamo di controllare se il tuo gazebo sia coperto dalla tua assicurazione sulla casa.
Bedienungsanleitung herunterladen
Casetta in legno con capanno Maardu 3,9x2,4x2,51m, 44mm, Grigio chiaro
Caratteristiche e dettagli





